名古屋で新築・中古マンションなら名東区のスクエアへ
スーパーや学校に近く利便性の高いマンションを紹介します
HOME
> マンション
マンション
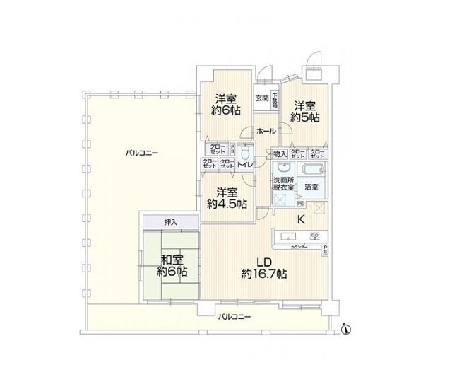
ライオンズマンション平安通302 北区
価格
2,599万円
間取り
3LDK
所在地
名古屋市北区上飯田南町2丁目3
交通
名古屋市営地下鉄上飯田線・名鉄小牧線『上飯田』駅 徒歩6分
築年月
平成10年8月
専有面積
76.27㎡(23.07坪)
バルコニー面積
9.79㎡(約2.96坪)
管理
全部委託(日勤)
階建/階
12階建/3階部分
構造
鉄筋コンクリート造
総戸数
36戸
駐車場
10,000円/月
管理費
11,900円/月
修繕積立金
15,250円/月
現況
空室
引渡日
相談
取引形態
仲介
コメント
壁芯約76㎡!3LDK!水回りすべてリフォーム済み。
場!飯田線・名鉄小牧線「上飯田」駅まで徒歩約6分!
HOME
土地
一戸建て
マンション
千種区
東区
北区
西区
中村区
中区
昭和区
瑞穂区
熱田区
中川区
港区
南区
守山区
緑区
名東区
天白区
長久手市
日進市
尾張旭市
瀬戸市
春日井市
その他
収益・事業用物件
賃貸
物件動画
会社概要
お役に立てる不動産情報
売りたい方へ
不動産相続でお悩みの方へ
求人情報
不動産選びのポイント
個人情報について
■住所
〒465-0093
愛知県名古屋市名東区一社2-10